
ОФИС POST & BEAM ИЗ СИБИРСКОГО КЕДРА
Красноярск, РоссияГод реализации
2018Локация
Красноярск, РоссияВремя строительства
12 мес.Бюджет
₽Площадь строения
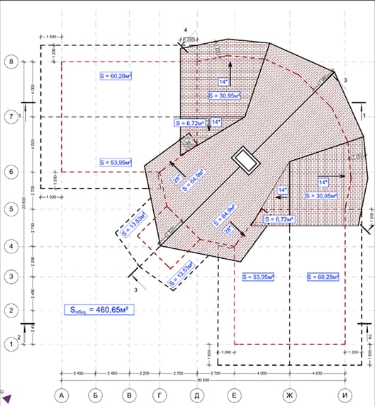
310 м²Этажность
2 этажаТехнология
КомбинированнаяСтатус
Завершен2 / 4
Кедровый офис компании «СИВЕР», ставший архитектурной визитной карточкой бренда.
Этот проект стал для компании «СИВЕР» осознанным архитектурным высказыванием и способом выделиться на фоне конкурентов. Для офиса был выбран формат здания из кедровых брёвен, выполненного по технологии Post & Beam, что позволило объединить выразительную архитектуру, экологичность и современный подход к организации рабочего пространства.
Открытые деревянные балки и колонны формируют характер интерьера, создавая ощущение прочности, надёжности и конструктивной честности. Использование натурального дерева подчёркивает приверженность компании экологическим принципам и устойчивому развитию. Этот офис стал не просто рабочим пространством, а архитектурной визитной карточкой бренда — примером того, как традиционные материалы могут работать в связке с инновационными решениями, формируя комфортную и эффективную среду для команды.
Открытые деревянные балки и колонны формируют характер интерьера, создавая ощущение прочности, надёжности и конструктивной честности. Использование натурального дерева подчёркивает приверженность компании экологическим принципам и устойчивому развитию. Этот офис стал не просто рабочим пространством, а архитектурной визитной карточкой бренда — примером того, как традиционные материалы могут работать в связке с инновационными решениями, формируя комфортную и эффективную среду для команды.
Статьи и видео
1/12
2/12
3/12
4/12
5/12
6/12
7/12
8/12
9/12
10/12
11/12
12/12

ПАНОРАМНОЕ ОСТЕКЛЕНИЕ, ВЫСОКИЕ ПОТОЛКИ, СЕМЕЙНЫЙ ФОРМАТ
Статьи и видео
1/7
2/7
3/7
4/7
5/7
6/7
7/7
